Residential, Lifestyle And Rural Property

Property

Gold rush era Inn…

Contact for price

2 MERCER STREET, Shelford

Sold!
Property Type: House
5 Beds 2 Baths 1618 Square metres 3 car spaces

Description

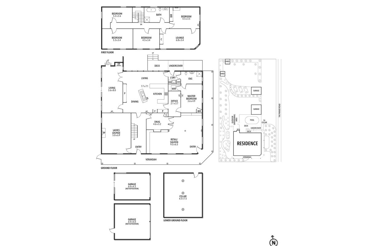
A rare opportunity to acquire this mesmerising historic period property on two titles, totalling 1,618 m², (approx. 0.4 acre), nestled within a pretty valley at Shelford and with stories to tell and plenty more to write.

Built as an Inn near the Leigh River crossing, circa 1852, allowing weary travellers on their way to the Ballarat gold fields to rest, sup, feed their horses and buy supplies. For a time, Cobb & Co. used the building as a changing station and in later years, it also served as a hotel, General Store and Post Office.

The current owner has performed a sympathetic restoration, peeling away layers to reveal the true soul of the building and rediscovering the Colonial Georgian architectural lines and style.

The main entrance reveals the light-filled original stair hall, turn left and you’re greeted by a large generous room with open fireplace, (OFP), and over-mantle that was once the ladies’ saloon; turn right and you enter what would have originally been the public bar of the hotel and more recently the general store area and post office. This large space with separate entrance, original shelving and dual OFP’s could easily be turned back into yet another family living area, or for the commercially minded and STCA, a retail space or café.

There are five double bedrooms, master on ground floor with parent’s retreat, ensuite and built-in robes, while another four, one with OFP, are upstairs and share a large, renovated bathroom with bath, shower and WC. The second floor also includes another large lounge room.

At the rear of the home is the sunny and functional open plan kitchen and family dining area, which overlooks a north facing deck and fully enclosed swimming pool. Adjacent to this, there’s a sitting room that takes in the tranquil side garden. Other features include six independent RC/AC heating/cooling units plus a cellar.

Outside, there’s a separate studio space with garden access, plus a double garage. One of the features of the large rambling cottage garden being the original cobblestone paving, a remnant of the Cobb & Co. days. There’s also a productive orchard, with apple, stone-fruit, citrus and olive varieties, plus a kitchen garden, chicken run and old dairy.

The building offers plenty of options and would be an ideal residence or country retreat. Alternatively there’s enormous scope to operate a boutique food and accommodation venue or café. Just 40 minutes to Geelong and Ballarat, 50 minutes to Surf Coast beaches and 80 minutes to Melbourne.

To book an inspection, call selling agents… Malcolm Condie: 0407 034410 or Simon Horne: 0488 440303.

Heating & Cooling

  • Air Conditioning
  • Open Fireplace
  • RC/AC

Outdoor Features

  • Courtyard
  • Deck
  • Fully Fenced
  • Secure Parking
  • Shed
  • Swimming Pool - Above Ground

Indoor Features

  • Broadband Internet Available
  • Built-in Robes
  • Dishwasher
  • Floorboards
  • Rumpus Room
  • Study
  • Workshop

Location

© 2023 - 2026 | Condie & Co Real Estate , All Rights Reserved | Privacy Policy. Powered by Eagle Software