Residential, Lifestyle And Rural Property

Property

Suit family, downsizer or investor

Contact for price

37 MOREILLON BOULEVARDE, Bannockburn

Sold!
Property Type: House
3 Beds 2 Baths 624 Square metres 2 car spaces

Description

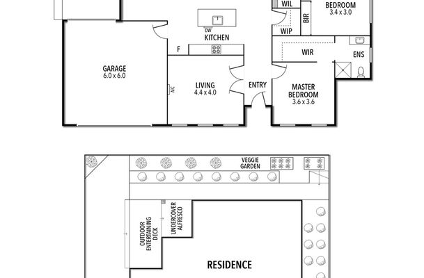
A beautifully presented three bedroom family home in one of Bannockburn’s premier locations.

The home boasts a well-designed layout with two separate living areas, one a formal lounge or TV snug, the other an informal open plan family living and dining room that leads out to an undercover outdoor area. The adjoining kitchen features stainless steel electric oven and hotplates, two-drawer dishwasher, walk-in pantry and stone bench tops with breakfast bar.

The master bedroom features an ensuite and large walk-in robe, while bedrooms two and three have built-in robes and share the central family bathroom with vanity, shower and separate bath.

A galley-style laundry and separate WC complete the home offering. Other features include plantation shutters, carpet in all bedrooms, walk-in linen cupboard, double lock-up garage with remote door, plus two reverse cycle heating/cooling units for year-round comfort.

Outside there’s an established low maintenance garden on a manageable 624m² allotment with lawn, fruit trees and raised gardens beds for growing vegetables and herbs.

Conveniently situated to Bruce’s Creek Reserve and walking track, P-12 Secondary College, St Mary MacKillop Primary School, sporting precinct and the Bannockburn town centre. With good commuter access to Melbourne and Geelong, making this an ideal property for families, downsizers or investors alike.

Heating & Cooling

  • Air Conditioning
  • RC/AC

Outdoor Features

  • Deck
  • Fully Fenced
  • Alfresco Area
  • Remote Garage
  • Secure Parking

Indoor Features

  • Broadband Internet Available
  • Built-in Robes
  • Dishwasher
  • Floorboards
  • Pay TV Access

Location

© 2023 - 2026 | Condie & Co Real Estate , All Rights Reserved | Privacy Policy. Powered by Eagle Software