Residential, Lifestyle And Rural Property

Property

New Price...

$2,300,000

100 Portreath Road, Bellbrae

Sold!
Property Type: Acreage/Semi-Rural
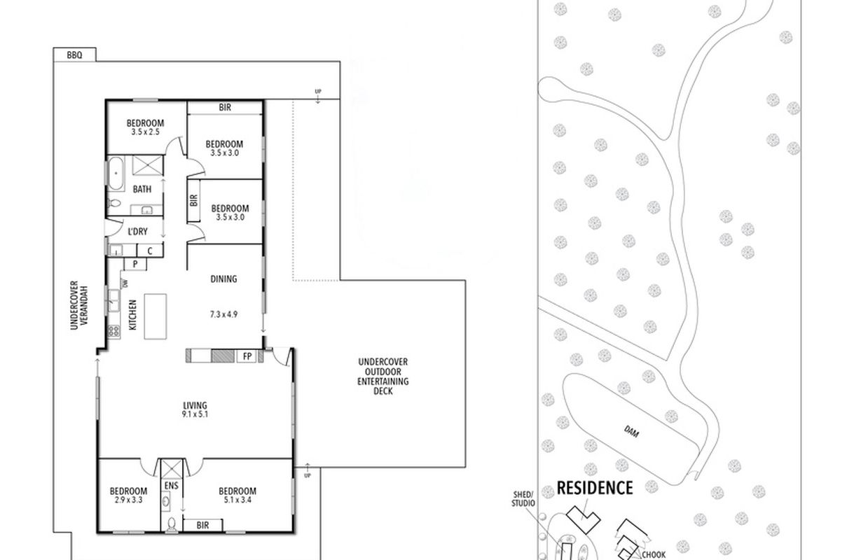
5 Beds 2 Baths 8.1 Hectares

Description

A rare opportunity to secure the ultimate lifestyle property in a tightly held pocket of Bellbrae and close to some of the best beaches on the Surf Coast.

Improvements include a functional 5 bedroom home, circa. 1970, of masonry brick construction. There’s a functional kitchen and meals area, plus a separate living area that opens onto a wide north facing deck overlooking the lake and timbered paddocks beyond. The master bedroom features an ensuite, while a refurbished second family bathroom services the remaining bedrooms.

A natural watercourse traverses the 8.1 hectare, (20 acre), property creating an ornamental lake for swimming and leisure activities. Perfectly suited to running livestock, the property is subdivided into three main paddocks and includes a native timber plantation providing both shelter and fuel.

Other features include additional guest accommodation, workshop, sundry shedding and a chicken run. Just 10 minutes to Anglesea, 15 minutes Torquay, 30 minutes Geelong and 90 minutes to Melbourne.

Inspection strictly by appointment, only with agent.

Outdoor Features

  • Deck
  • Fully Fenced
  • Alfresco Area
  • Shed

Indoor Features

  • Study
  • Workshop

Location

© 2023 - 2026 | Condie & Co Real Estate , All Rights Reserved | Privacy Policy. Powered by Eagle Software