Residential, Lifestyle And Rural Property

Property

Did we mention the view?

$2,200,000

50 Parker Street, Anglesea

Sold!
Property Type: House
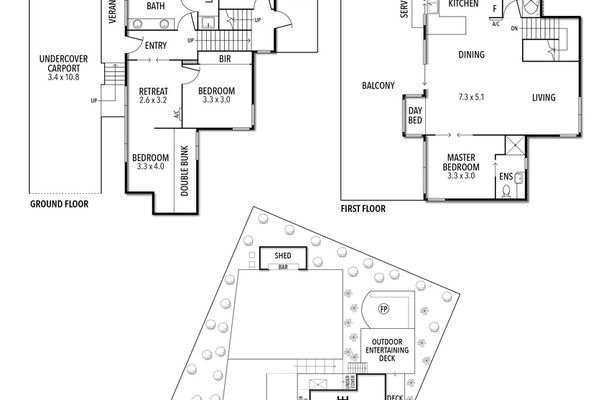
4 Beds 3 Baths 740 Square metres 4 car spaces

Description

Perched high on sought after Parker Street, this architect designed and beautifully appointed, multi-level, low maintenance home boasts some of the most stunning views you’ll find in Anglesea!

We are proud to offer by private sale this iconic beach home, affectionately known as ‘The Anglesea Nest’. Built over three levels, the house featured in ‘Australian Home Beautiful’ magazine when first constructed in the 1970’s. The home has recently been renovated to enhance every aspect and make the most of those magnificent views.

The open plan family living and meals area opens to a generous north-facing deck, perfect for alfresco dining, with uninterrupted views over main Beach and the Anglesea River to Point Addis. The functional kitchen shares the view and features electric oven and cooktop, dishwasher and porcelain double bowl sink.

Offering abundant accommodation, the home boasts three double bedrooms, main with ensuite, plus a 5-bed bunk room, perfect for when guests come to stay! There are two additional bathrooms, both beautifully appointed. The home features timber flooring, RC/AC and quality fittings throughout.

Outside there’s a second outdoor deck and BBQ area perfect for entertaining, which overlooks the low-maintenance lawn and garden area with adjoining outdoor studio and party space.

Just minutes from the town centre and cafes, renowned golf club and an easy walk to main beach and surf club. The home is on an elevated allotment of 739 m² and is zoned General Residential Zone (GRZ1). Geelong and Melbourne are an easy commute.

A rare offering indeed and perfectly suited to anyone seeking a holiday home in this most prized of Anglesea locations!

Inspection by appointment with agent; Simon Horne: 0488 440303

Heating & Cooling

  • Air Conditioning
  • RC/AC

Outdoor Features

  • Balcony
  • Deck
  • Alfresco Area
  • Shed

Indoor Features

  • Broadband Internet Available
  • Dishwasher
  • Floorboards

Location

© 2023 - 2026 | Condie & Co Real Estate , All Rights Reserved | Privacy Policy. Powered by Eagle Software